
(调温型除湿机组成及作用)
调温型除湿机适合高温环境中使用,在一些温度变化比较大,温度比较高的场合下,使用调温型除湿机的话,对于降低环境内温度和湿度会有比较显著和良好的效果,给我们的生产和工作带来的极大的方便。
调温型除湿机的湿装置由除湿蛋和承座组成。

所谓除湿蛋,就是一种多孔的,透气较好的的陶瓷外壳,除湿蛋的里面是一个容器,里面有吸收空气水汽的物质,本体底面设一穿孔,用一塞套封闭,该外壳外面得局部涂设湿度感应材料,以显示除湿蛋的吸湿状况;该承座为托持除湿蛋的座体,其中承座得为夹状结构,由左右夹板组成,两夹板形成的夹口作为除湿蛋的承窝,夹板上得设有透视窗,透视窗内设有湿度成应材,以显示除湿蛋的吸湿状况。
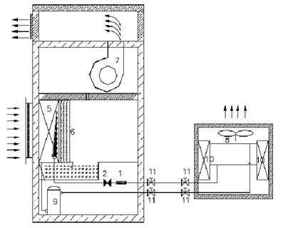
调温型除湿机与一般型除湿机相比,在制冷系统中,增设了一个水冷冷凝器(水冷式)或一个室外风冷冷凝器(分体风冷式),再热器面积可减小。这里面有两种做法,一种是将再热器置于水冷或风冷冷凝器前面,与后者串联布置,并分多路控制,以此调节对冷却除湿后空气的加热量,从而达到控制出风温度的目的。另外,水冷式设比例式三通水量调节阀,调节冷却水量,风冷式设冷凝风量控制,从而使冷凝器带走多余的热量。
另一种做法是将再热器置于水冷或风冷冷凝器后面,也是串联布置,只通过水冷式的水量调节阀调节冷却水量或风冷式的冷凝风量控制,来调节冷凝器带走的热量,从而到达调节出风温度的目的。

<
<
<
<
<
<
<
<
<
<
<
<